Дом 125 кв.м на 7 с. КП Классик
| Стоимость | 17 070 585 |
|---|---|
| Комнат в доме | 3 |
| Статус земли | ИЖС |
| Тип комнат | раздельные |
| Право собственности | Посредник |
| Тип парковки | Парковочное место |
| Категория земли Avito | Личное подсобное хозяйство (ЛПХ) |
| Способ связи avito | По телефону и в сообщениях |
| Тип строения | Коттедж |
| Площадь, кв.м. | 125.4 |
| Площадь участка, сот | 7.15 |
| Этажность | 1 |
| Материал стен | блочный |
| Отопление | центральное газовое |
| Населенный пункт | коттеджный посёлок Классик |
|---|---|
| Шоссе | Ярославское шоссе |
| Улица | улица К. Паустовского |
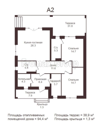
Объект - #3228. Продаётся коттедж площадью 125,4 (включая две террасы 7.9 и 31 кв.м) кв.м. на участке площадью 7,15 соток.в КП Классик, расположенном в черте населенного пункта Братовщина Пушкинского района. Центральные коммуникации, магистральное газоснабжение, свет 15 кВт. Сельские тарифы. Благоустроенная охраняемая территория, въезд через КПП, видеонаблюдение, ландшафтный дизайн. Развитая инфраструктура : школа и детский сад 10 минут пешком. Отличная транспортная доступность, удобная дорога. На территории коттеджного поселка планируется ФОК, сетевой продуктовый магазин, кофейня, банный комплекс, детский центр развития. Льготная ипотека всех видов, от 3,3%. Нюансы сделки уточняйте по телефону. Звоните!































