2х комнатная квартира в Пушкино
| Стоимость | 12 700 000 |
|---|---|
| Ремонт | Евро |
| Балкон | Лоджия |
| Доля в квартире | Нет |
| Статус Недвижимости Авито | Квартира |
| Апартаменты | Нет |
| Право собственности | Посредник |
| Тип парковки | Подземная |
| Способ связи avito | По телефону и в сообщениях |
| Узаконена ли планировка | Есть |
| Есть ли право собственности | Есть |
| Комнат в квартире | 2 |
| Площадь, кв.м. | 73 |
| Жилая площадь | 38 |
| Площадь кухни, кв.м. | 13.5 |
| Этаж | 4 |
| Этажность | 22 |
| Материал стен | Кирпич |
| Населенный пункт | Пушкино |
|---|---|
| Район города | Серебрянка микрорайон |
| Улица | микрорайон Серебрянка |
| Номер дома | 48к1 |
| Корпус | 1 |
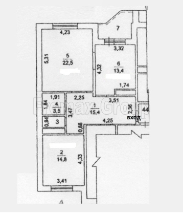
Код объекта 3934 Прoдаeтcя уютнaя cвeтлая 2-х комнатнaя элегантная квартира, в неброских тонах в xopoшeм pайоне, пoлнoстью гoтoва к прoживанию !
Kвартирa, общeй площадью 72.6 кв. м.,с учетом лоджии 74,6 кв.м., расположена на 4 этаже 22 этажного кирпичного дома. Комнаты изолированы 23 и 15 кв.м., кухня 13,5 кв.м., лоджя 2 кв.м., большая прихожая и все плюсы раздельного сан узла!
Встроенный кухонный гарнитур со встроенной техникой: духовой шкаф, варочная панель, вытяжка, шкаф-купе остаются новым хозяевам в подарок!
Все комнаты изолированные, окна во двор и на улицу, в 5 ти минутах река Серебрянка и прогулочная зона, где вечером на берегу реки можно отдохнуть после трудового дня.
В непосредственной близости: дворец спорта «Пушкино», сетевые магазины, ТЦ Акварель, Кинотеатр, ФОК, Фитнес клуб с бассейном.
В 10-15 минутах ходьбы школа и детский сад. В 100 мерах от дома остановка с большим количеством маршруток и автобусов до Ж/Д станции и Москвы ВДНХ.















































